アパートマンション・KIMOTO2階202号室
情報更新日:2026-05-02
| 所在地 | 間取 | 月額賃料 | 専有面積 バルコニー面積 |
共益費 管理費 |
敷金 礼金 |
|---|---|---|---|---|---|
| 秋田県 能代市 景林町 | 1DK | 41,000円/月 |
34.83㎡ 2.83㎡ |
1,000円/月 ─ |
1ヶ月 41,000円 ─ |
ガスコンロ・ガスストーブ付き
本物件の内容や画像等は全て現況優先とさせていただきます。各画像は参考図となります。
| 交通機関 | JR五能線 能代駅 徒歩15分 | ||||
|---|---|---|---|---|---|
| 学区 | 渟城西小学校(0.8km)・能代第一中学校(0.9km) | ||||
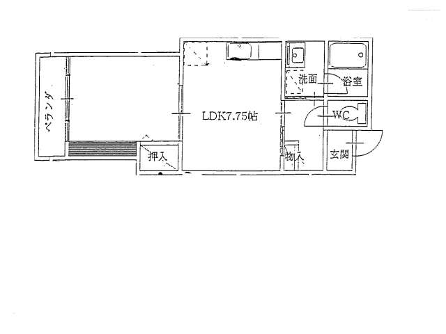
| 詳細間取 | 1DK (洋6帖×1、DK7.75帖) | ||||
| 周辺施設 | いとく能代通町店:450m、ダイソーいとく能代通町店:450m、ローソン能代昭南町店:600m | ||||
| 駐車場 | 敷地内 3,300円 | 建物構造 | その他 (鉄骨造) 地上3階建 | ||
| 駐車場複数台 | 不可 | 主要採光方向 | 不明 | ||
| 仲介料 | 45,100円 (1ヶ月相当) | 周辺環境 | スーパー、飲食店街周辺 | ||
| 保険又は共済 | 要加入 | 入居可能日 | 2026/06/上旬 | ||
| 保証金 | 築年月 | 平成11年2月 | |||
| 権利金 | 取引態様 | 仲介 | |||
| 保証会社 | 利用必須 アーク株式会社 契約時22,650円~23,750円 月額1,500円 | ||||
| その他費用 | 駐車場契約手数料:3,300円 | ||||
| トイレ | 洋式 独立 水洗 | 風呂 | 有 シャワー有 給湯式 | ||
| 設備 | 上水道設備(公営) 下水道設備 給湯(ガス) 洗面化粧台(独立) 都市ガス ガスコンロ(2口) エアコン ガスストーブ ベランダ 洗濯機置場 物置 二重サッシ 網戸 照明器具 電話配線設備 TVアンテナ BSアンテナ フローリング クローゼット 郵便受 | ||||
| 備考 |
保険加入2年間 単身向 普通賃貸借 詳細はコチラ |
||||
| 取扱業者 |
|
||||








